
服务热线:15829680868
公司邮箱:578427336@qq.com
公司网址:www.f1e54.cn
公司地址:西安市高新区丈八街办长安科技园
发展大道25号欧凯创业小镇4楼401室
应用场景
适用于医院手术室、实验室、设备室,还有食品厂,医用器械厂等需要清洁、密闭的场所。
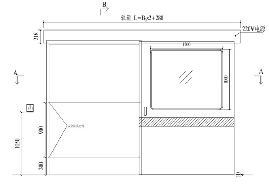
产品特点
外配圆管拉手,内配暗拉手,保证门扇完全闭启
控制系统完全按照医用电气系统安全要求设计,并可根据医院方的要求采取多种控制方式,不对同一环境的其他设备形成电磁干扰;
动力梁及门体直接外挂于墙体,安装快速简单;
门体配装安全感应器,可自动检测到位于门体中间的障碍物,防夹,使门保持开启,保障行人或设备安全;
独特的下沉方式,最大下沉距离15mm,向内10mm,增加一定气密性。
整体运行轻快安静,室内外隔音效果好;
技术参数
· 开门宽度(单):900-2000mm
· 最大门重(单):200kg
· 开门速度(单):0.15m/s-0.45m/s
·
关门速度(单):0.10m/s-0.45m/s
· 开放时间 :2-20s(可调)
· 紧闭力F: >70n
· 手动推力:<100n
· 整机消耗功率:<150w
技术参数