
服务热线:15829680868
公司邮箱:578427336@qq.com
公司网址:www.f1e54.cn
公司地址:西安市高新区丈八街办长安科技园
发展大道25号欧凯创业小镇4楼401室
产品特点:
1.控制系统完全按照医用电气系统安全要求设计,并可根据医院方的要求采取多种控制方式,不对同一环境的其他设备形成电磁干扰;
2.动力梁及门体直接外挂于墙体,安装快速简单;
3.门体配装安全感应器,可自动检测到位于门体中间的障碍物,防夹,使门保持开启,保障行人或设备安全;
4.独特的下沉方式,最大下沉距离15mm,向内10mm,增加一定气密性。
5.整体运行轻快安静,室内外隔音效果好;
技术参数:
开门运行速度 250-500mm/s(可调)
闭门运行速度 250-500mm/s(可调)
开放时间 2-20s(可调)
紧闭力F >70n
手动推力 <100n
整机消耗功率 <150w
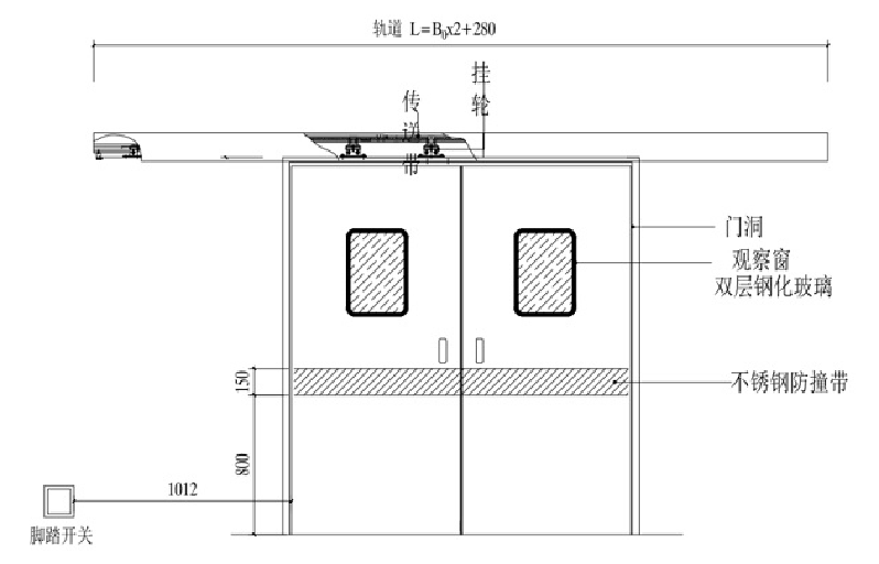
结构示意: